Al momento de diseñar una estructura, según su fin, es necesario considerar todas las cargas actuantes sobre esta; ademas se de tomar en cuenta las características del suelo donde se emplazará la estructura; con la información necesaria se decidirá el tipo de fundación a utilizar y se procederá con su cálculo. En este artículo hablaremos de un tipo de fundación directa usado con frecuencia para obras de menor envergadura, los cimientos de hormigón ciclópeo.
1. CONCEPTO DE CIMIENTOS DE HORMIGÓN CICLÓPEO HºCº
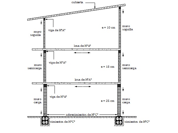
Las fundaciones o cimientos de hormigón ciclópeo, son elementos estructurales portantes, diseñados y construidos por unidad de longitud, estos cimientos se encuentran en contacto directo con el suelo/tierra, y están destinados a transmitir a este las cargas muertas de la estructura – edificio, así también las cargas vivas y otras cargas actuantes.
Se puede utilizar estos cimientos de hormigón ciclópeo, en construcciones de hasta tres pisos en las que no se cuentan con columnas (según normativa de cada país), las cargas son transmitidas a los cimientos mediante muros portantes. Mediante un Descenso de Cargas será posible determinar la carga en Kp/m con la que se dimensionarán los cimientos obteniéndose el área de corte correspondiente.
Figura 1. Cimientos de Hormigón Ciclópeo dimensionados para soportar todo el peso de la estructura.
En estructuras de hormigón armado que cuentan con columnas, los cimientos son dimensionados para soportar solamente el peso propio del muro.
Figura 2. Cimiento de Hormigón Ciclópeo dimensionado para soportar solo el peso del muro.
2. ESPECIFICACIONES TÉCNICAS DE LA CONSTRUCCIÓN CIMIENTOS DE HºCº
Los cimientos de Hormigón Ciclópeo, serán construidos tomando en cuenta un desplazamiento de piedra del 60 % y 40 % de hormigón por cada metro cúbico.
- Los cimientos no requieren de un encofrado para su construcción, ya que serán alojados directamente sobre el terreno excavado. De evidenciarse inestabilidad en las excavaciones, considerar la utilización de encofrados.
- Antes de ejecutar los cimientos de hormigón ciclópeo se debe considerar una capa de hormigón pobre, para efectos de nivelación.
- El hormigón utilizado tendrá una resistencia característica de 180 Kp/cm², resistencia que se alcanzará con una dosificación de 1 : 2 : 4 (cemento : arena : grava) con una cantidad de cemento de 296 Kg/m³ y una relación de agua/cemento menor o igual a 0.53, la resistencia general del cimiento de hormigón ciclópeo se verá influida favorablemente por la piedra utilizada.
- La arena deberá tener un módulo de finura mayor a 2.58.
- La grava deberá tener un diámetro menor o igual a 1 ” (no boleada).
- El agua deberá tener un Ph mayor o igual a 5 y materia orgánica menor o igual a 15 gr/lt.
- La piedra deberá tener un diámetro mayor o igual a 30 cm.
- Todos los agregados deberán ser lavados antes de su aplicación.
- El cemento, los áridos y el agua deberán cumplir con las especificaciones del hormigón armado.
- El mezclado del hormigón debe ser mecánico y se utilizará una varilla de acero para su compactación.
- Al ser un cimiento que sera construido utilizando mano de obra directamente, considerar todas las medidas de seguridad adicionales para el personal que estará en la zanja excavada.
3. METODOLOGÍA DE CONSTRUCCIÓN DE CIMIENTOS DE HORMIGÓN CICLÓPEO
Verificada la excavación, y la capa de nivelación de hormigón pobre en la que se alojará el hormigón y la piedra, se iniciará su colocación en dos capas alternadas de hormigón simple y piedra, teniendo el cuidando de guardar la proporción especificada.
La primera capa será de hormigón de 10 cm de espesor sobre la que se colocará a mano una capa de piedra. No se permitirá que sean arrojadas por cuanto pueden provocar daños a la capa de hormigón adyacente y al suelo en contacto directo. Se vaciará la segunda capa repitiendo el mismo procedimiento hasta completar el tamaño del elemento.
Se tendrá especial cuidado de que la piedra quede totalmente embebida en el concreto y que no existan espacios libres entre el hormigón y la piedra (cangrejeras) para lo que se realizará un chuseo (golpeteo) con la ayuda de una varilla (Compactado).
** Se deben mojar las piedras durante el colocado, por motivos de adherencia … también para evitar la absorción de humedad del hormigón.
Figura 3. Cimiento de Hormigón Ciclópeo
Cuando se haya alcanzado el tamaño del elemento se colocarán cuñas o claves de piedra en el eje del cimiento para construir posteriormente el sobrecimiento. La función de estas claves es hacer que el cimiento y el sobrecimiento trabajen monolíticamente ante la solicitación de cargas. (ver Figura 3)
Nota.- Se debe evitar la utilización de vibradora ya que la aguja no puede sumergirse en su mayor parte, también se puede dañar al llegar al contacto con la piedra.
4. CÓMPUTO MÉTRICO DE LOS CIMIENTOS DE HORMIGÓN CICLÓPEO
Su cuantificación se hará en unidad de volumen, m³ en general, basta con verificar el volumen realmente ejecutado, que deberá ser comprobado en obra mediante la medición y con los planos del proyecto, se debe tomar las medidas en los ejes X, Y y Z.